Low wall and its construction plan and elevation in auto cad file
Description
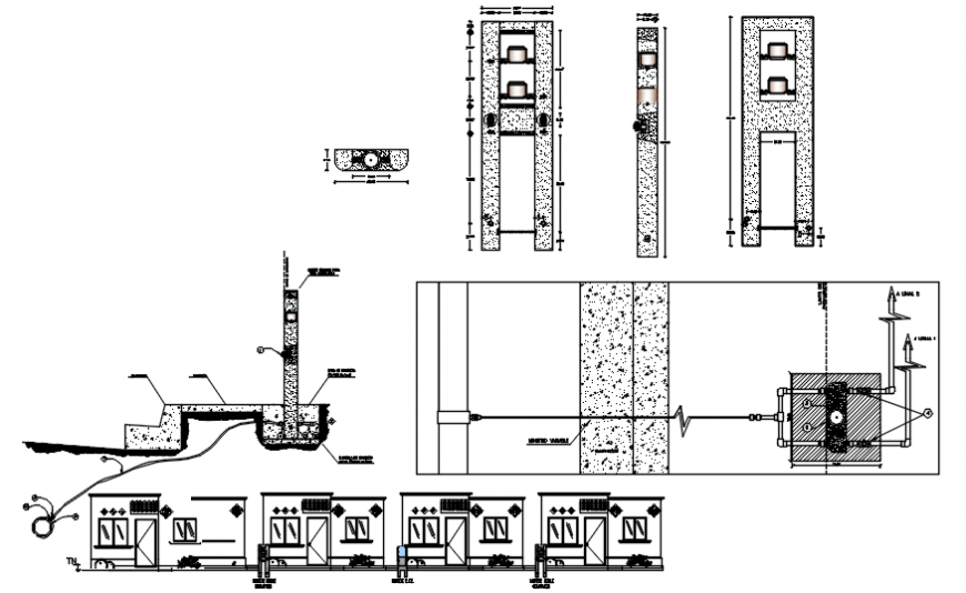
Low wall and its construction plan and elevation in auto cad file its include detail of concrete area with wall column and elevation include wall slab area and plan and elevation with necessary dimension.

Uploaded by:
Eiz
Luna

